tiny house
   Contact Us:   tiny house  small house design  small house  sabah architect  tiny house  tiny house  tiny house

Modern Tiny House

PDF Plans


Instant Downloads available: https://www.etsy.com/shop/ArchitectChin

Description of Digital Download:

Digital PDF Blueprints of Prefab Modern House D - Hill:

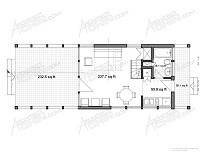
Plan, Loft Plan, Elevations, Section, Sectional Details, Roof Frame Plan, Materials are described in the drawings. Framing details of Roof, internal and external Walls. PDF Format, A4 size.

A Material List in PDF Format.

Diagonal Watermarks will not be visible in the downloaded files you purchase.

Advantages of this Design:

All materials are available off-the-shelf from hardware stores. Easy to prefab and install. Minimal in-situ works, most work can be prefabricated in a factory. Only the concrete footings need to be cast onsite. The rest of the materials can be prefabricated and delivered to site pre-built and pre-finished. All metals frames can be pre-welded in factory and will fit into the back of a lorry.

We designed this house for Time, Labor and Costs savings. The site footing casting can be done by one team of workers while the materials are being pre-built in the factory by another team of workers, thus saving time. This way you don’t have to wait until your footings are completed to start the fabricating walls and floors.  Building in a factory has many advantages such as quality and precision control. Minimal wastage. And you can work under any weather conditions. Your house can be built by 2 separate team of workers working simultaneously, saving time and costs.

Description of House:

One House includes a toilet, bedroom, kitchen, storage, loft, living/dining and terrace.

Overall footprint of house is 16' x 32' = 512 square feet.

Enclosed Area =16' x 20' = 320 square feet.

Loft = 8' x 16' = 128 square feet.

Terrace = 12' x 16' = 192 square feet.

Height = 18'

You can extend the length of the house to any suitable length. (Width = 16')

Metal Frame, dry floor and wall construction (cement fiber board, timber board, glass, plywood, etc.), Metal roofing, Concrete Footings, Metal stumps

Costs of materials are estimated to be around USD20, 000.


tiny house design                          little house design

  small house design                          architect design

tiny house


  Back to the Top


free web counter html



                                   All Images are Copyrighted by www.ArchitectChin.com 1995 - 2025
                                   Designed by Chin Architect
\\

po
po